人们创造的城市生活是对自然的一种逃离,而当习惯于平静与舒适的安全感时,又会渴望回归自然中的野性。
于是,以大自然为灵感源泉,将大自然转化为空间的一部分,让在纷扰城市中生活的我们感受身处自然的平和与温暖,这便是设计的魅力。


在众多材料的选择上,大理石与木材可谓是家装设计中最经典的一组搭配,也是当下最流行的家居元素之一。大理石温润如玉,原木素雅质朴,
硬朗与柔软的纵横,粗糙与细腻的交织,材质间的对垒使得整个空间扑面而来一股朴素自然的气息。

梵高曾说:“没有什么不朽的,包括艺术。唯一不朽的,是艺术所传递对人和世界的理解。”
空间也是如此。
空间承载了生命的一大部分,它反映着我们的态度、情感与品质,更映射着生活的本质,与人形成相得益彰的互动关系,彼此印证,共生共长。


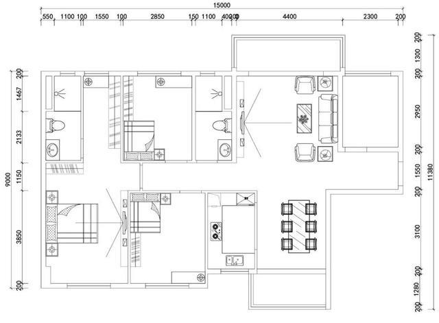
户型介绍
面积:
150㎡
户型:
三房两厅
风格:
现代北欧
空间说明:
本案以现代简约主义为主,通过大理石与木材两种材质融合,追求细腻与精致并存的品质空间。大理石的高级,实木的质感,将功能与美学转化为精致的细节,让整个家居空间充满优雅精致又不失温馨的氛围,整体设计简洁利落,极具线条美感。
平面图:

01
客厅


客厅格局以简约灰白为主,暖色穿插其中。大理石连纹背景墙,大气而震撼的同时,打破了空间的界限,与地板相呼应。
实木元素的融入,让大理石多了几分朴素温暖的韵味,两种材质的完美融合,赋予其刚柔并济的空间氛围,变得更加精致和有层次感。


空间中深浅不一的大理石肌理色调,具有流动生命力,既丰富空间格调,又带来无尽想象的自然美感。
加上充满现代感的灯具点缀,及原木特有的肌理和质感,整个空间高冷又不失温馨。
02
餐厅


餐厅延续室内的线条感与色彩,以简洁又富有力量的材质呈现出空间气度。
现代感的家具,层次错落布局,垂坠吊灯,大面积抽象艺术画,碰上温暖明亮的原木色,构筑更浓厚就餐仪式感。
03
厨房


厨房采用寒江雪纹理的大理石,搭配灰色的操作台与墙面,整洁明亮,便于清洁打理。玻璃推拉门设计,既扩展了空间又阻挡油烟,保持了整体的通透感。
04
主卧


主卧整体氛围淡雅而不失厚重,以沉静内敛的暖色为基调,
原木色木纹砖糅合着莫兰迪色系的床品和窗帘,搭配东方元素的装饰画,没有繁复华丽的色彩,为室内创造出一种自然素雅的风范,
充满了静谧、安宁。


主卧卫浴间的设计,选用
洁白质地的鱼肚白纹理的大理石瓷砖,让空间呈现一种清新典雅的质感。
搭配温润的原木元素,摆脱大理石单一色调给人带来的冰冷和距离感。
05
客卫


有别于大理石的高级感,
客卫采用雅致白色瓷片为底,点缀彩色几何图线条,清新而活泼。
在方寸间带来新的视觉冲击,让空间散发出一种与众不同的雅逸内涵。
不是只有创造出新奇的东西才算是创造,把熟悉的东西当成未知的领域再度开发也同样具有创造性。
大理石与木材的碰撞,就是这样奇妙的“创造”,肌理间的交相呼应为整个空间烘托出一股原生野趣,仿佛一切都回归本源,宛若新生。
全屋瓷砖清单

编号:ML126139
规格:600*1200mm
应用空间:客厅、餐厅

编号:MR126105
规格:600*1200mm
应用空间:电视背景墙

编号:BG2412Q01
规格:1200*2400mm
应用空间:沙发背景墙

编号:MR126106
规格:600*1200mm
应用空间:厨房

编号:ML126130
规格:600*1200mm
应用空间:厨房

编号:2BG126F38M75
规格:600*1200mm
应用空间:主卧

编号:3BG126F43M75
规格:600*1200mm
应用空间:主卫

编号:MR126701
规格:600*1200mm
应用空间:主卫

编号:3D2E25054
规格:250*750mm
应用空间:客卫

编号:3D1E25052
规格:250*750mm
应用空间:客卫

编号:3D2E25078(混包)
规格:250*750mm
应用空间:客卫

编号:3D2E27054D
规格:300*300mm
应用空间:客卫


